| eröffnet: | 15. November 1927 |
| als S-Bahn-Triebwagenhalle geschlossen: | 30. September 1983 |
| als Außenstelle des Bw Wustermark geschlossen: | 1. September 1996 |
| Vermietung an AEG Schienenfahrzeuge GmbH Hennigsdorf: | 1997 |
| Verkauf an Stadler Rail AG: | 2002 |
Mit der am 1. Oktober 1904 erfolgten Eröffnung der Strecke Bötzow - Nauen durch die Osthavelländischen Kreisbahnen erhielt der Bahnhof Velten auf seiner westlichen Seite neben einem weiterem Bahnsteig auch einen kleinen eingleisigen Lokschuppen mit einem turmartigen Anbau, in dem sich ein Wasserbehälter zur Versorgung der Dampflokomotiven befand. Diese Remise stand nördlich des Stellwerkes Vst und östlich der Heidestraße (heute Kreisbahnstraße) [1].
Ende 1910 folgte auf der gegenüberliegenden Seite, also zwischen der Bahn- und der Friedrichstraße (heutige Rosa-Luxemburg-Straße) ein weiterer Lokschuppen, der allerdings zweigleisig war. Dieser diente dem Unterhalt und der Pflege der hier verkehrenden Dampflokomotiven der Kremmener Bahn. Als dritte Werkstatt gesellte sich nun noch in den 1920er Jahren eine Triebwagenhalle für die neuartigen elektrischen Züge hinzu.

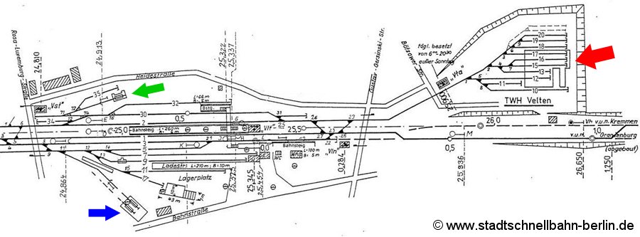
Gleisplan aus dem Jahre 1990.
Es bedeuten: grüner Pfeil: Lokschuppen der Osthavelländischen Kreisbahnen, blauer Pfeil: Lokschuppen der Kremmener Bahn, roter Pfeil: Triebwagenhalle der S-Bahn.
Nachdem sich die Reichsbahn die Kremmener Bahn als dritte Strecke für die Einführung der elektrischen Traktion der Berliner Stadt-, Ring- und Vorortbahnen auserkoren hatte, sah sie an deren nördlichen Endpunkt am Bahnhof Velten ein Betriebswerk vor. Diese Anlage entstand nach den Plänen des Reichsbahnarchitekten Richard Brademann in den Jahren 1925/26 ca. 800 Meter nördlich der Station.
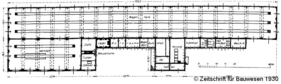
Ein 155 Meter langer dreigleisiger Schuppen, der somit drei Vollzüge a 140 Meter aufnehmen konnte, bildete das Kernstück der Anlage. An seinem südöstlichen Ende schloß sich ein zweigleisiger, knapp 52 Meter langer Anbau an, der mit einem 10-t-Laufkran ausgerüstet war. Dadurch konnten vor Ort Motoren und Drehgestelle getauscht und auch gleich auf Güterwagen verladen werden. Nördlich abgehend und somit an der östlichen Schuppenseite befanden sich das Öllager, Büroräume, die Heizungs- und die Sanitäranlagen. Hinter dem Öllager steht gleich der Wasserturm, der in seinem unteren Bereich das Materiallager beherbergte.

Östliche Ansicht der Triebwagenhalle.
Repro aus: Zeitschrift für Bauwesen, Heft 2/1930

Grundschemata der Werkstattanlage.
Repro aus: Zeitschrift für Bauwesen, Heft 2/1930

Blick aus Norden auf die Wagenhalle mit der angedeuteten Erweiterung.
Repro aus: Zeitschrift für Bauwesen, Heft 2/1930
Westlich des Triebwagenschuppens liegen drei weitere Abstellgleise. Jedoch war hier von Anfang an vorgesehen, bei einem entsprechenden Bedarf eine baugleiche Wagenhalle anzusetzen. Die schienenseitige Zufahrt zum Betriebswerk regelte das mechanische Stellwerk Vta, das sich ungefähr 200 Meter südlich der Werkstattanlage befindet. Zumindest in den 1970er und 80er Jahren war dieses Stellwerk täglich außer sonntags von 6.00 bis 20.30 Uhr mit einem Stellwerkswärter besetzt.
Die Eröffnung der Triebwagenhalle (Twh) datiert auf den 15. November 1927, zu diesem Zeitpunkt fuhr man schon acht Monate mit der neuartigen Traktionsart auf der Kremmener Bahn. Als untergeordnete Dienststelle des S-Bahnbetriebswerkes Stettiner Bahnhof kümmerte sich das Werkstattpersonal um die Pflege und technische Unterhaltung der von hier eingesetzten Triebwagenzüge. Im Zuge der Ausbauplanungen Berlins zur Welthauptstadt Germania sah man ab 1942 vor, die Triebwagenhalle entsprechend zu erweitern [2]. Das Projekt kam jedoch nie über das Planungsstadium heraus.

Blick auf die Südansicht der Wagenhalle. Auf den Werkstattgleisen sind zwei der damals neuartigen Züge zu sehen.
Repro aus: Zeitschrift für Bauwesen, Heft 2/1930

Blick aus Richtung Kremmen über die Wagenhalle in Richtung Hennigsdorf.
Vor dem Wasserturm befinden sich in den Anbauten diverse Betriebs- und Personalräume für die hier Beschäftigten.
Repro aus: Zeitschrift für Bauwesen, Heft 2/1930
Ende April 1945: der S-Bahnverkehr wird wegen Strommangels eingestellt, Berlin ist eingekesselt. Die Anlagen der Triebwagenhalle Velten bleiben jedoch von Kriegsschäden verschont. Da die sich südlich von Hennigsdorf befindliche Brücke über den Oder-Havel-Kanal zerstört ist, kann die Deutsche Reichsbahn vorerst am 18. Juni 1945 nur einen dampfbetriebenen Vorortverkehr zwischen Velten und Hennigsdorf wiederaufnehmen. Erst ein Jahr später, am 6. Juli 1946 verkehren nach der erfolgten Brückenreparatur wieder die rotgelben Züge ab Heiligensee, auch die Triebwagenhalle nimmt spätestens jetzt wieder ihre Arbeit wieder auf.
Ein großer Einschnitt in das Betriebsgeschehen war der Bau der Mauer am 13. August 1961. Zwischen Hennigsdorf Süd und Heiligensee unterbrach die DDR die Kremmener Bahn. Während die ebenfalls zwischen Hohen Neuendorf und Frohnau unterbrochene Nordbahn bis zum November via Schönfließ und Blankenburg wieder an das Ostberliner S-Bahnnetz angebunden wurde, unterblieb das für den nördlichen Teil der Kremmener Bahn. Die Umsteigemöglichkeiten zur Fernbahn in Hennigsdorf und Hennigsdorf Nord (hier seit August 1958) sah man als ausreichend an. Da der nur sechs Kilometer lange Streckenabschnitt mit einem Betriebswerk und einen Unterwerk (in Hennigsdorf) ausgestattet war, entschloß man sich für die Durchführung eines Inselbetriebes. Die Triebwagenhalle Velten, die seit ihrem Bestehen dem S-Bw Nordbahnhof zugeordnet war, wurde kurz darauf nun neu dem S-Bahnbetriebswerk Friedrichsfelde als dessen zweite Außenstelle angegliedert.
Drei Triebfahrzeugführer sorgten den ganzen Tag über für die Bewegung des doch sehr beschaulichen Wagenparks. Schließlich gab es auch nur einen einzigen als "V1" gekennzeichneten Umlauf zu fahren. Ein weiterer Halbzug stand (außerhalb der Werkstattzeiten) immer als Reserve bereit. Der planmäßige Wagenpark bestand somit über die Jahre hinweg bis zum Schluß fast ausschließlich aus vier bis sechs Viertelzügen der BR 275. Einzig in dem Zeitraum, als man ab dem 12. April 1966 einen zusätzlichen Umlauf in den Zeiten des Berufsverkehres fuhr, stationierte die DR zwei Viertelzüge der BR 276.0 in der Twh Velten. Kurios mutet in diesem Zusammenhang das Verkehren von alten "Peenemündern" in diesem Umlauf an - der als "V2" gekennzeichnet wurde. Diese zusätzlichen Fahrten endeten am 28. September 1969.
Aufgrund des Inselbetriebes hatte die Betriebsdurchführung schon fast was familiäres. Die Besetzung der Dienste oblag der Triebwagenhalle Oranienburg. Da nicht alle Oranienburger Triebfahrzeugführer die bis zu 36 Zugfahrten pro Schicht fahren wollten, tauschten sie mit denen in der Nähe wohnenden Lokführer untereinander die Dienste. Und manchmal wurde sogar die Diensteinteilung darüber informiert. Offizieller Ablösepunkt für den Dienstwechsel der Lokführer war der Bahnhof Hennigsdorf Nord. Hier traf man sich im Gebäude der Aufsicht - wie viele Tassen Kaffee beim Abwarten auf die Sputnik-Anschlüsse getrunken wurden, bleibt bis heute ungezählt.

Blick vom Wasserturm auf das Gleisvorfeld (März 1983).
Alle planmäßigen Instandhaltungsarbeiten konnte die Twh Velten selbst ausführen. Bei zusätzlichen Arbeiten bzw. bei einem größeren Schadwagenbestand wurden die Schlosser und Elektriker von Arbeitern der Twh Oranienburg, die zu diesem Zeitpunkt ebenfalls dem S-Bw Friedrichsfelde angegliedert war, unterstützt. Mußten nun S-Bahnfahrzeuge ausgetauscht werden, so wurden diese mittels einer Diesellok zwischen Birkenwerder und Velten verfahren. Den doch sehr überschaubaren Rangieraufwand der Triebwagenhalle meisterte der dortige Wagenmeister fast immer allein.
Zu besonderen Ehren kam die Triebwagenhalle ab Beginn der 1960er Jahre. Der sich in Hennigsdorf befindliche VEB Lokomotivbau-Elektrotechnische Werke 'Hans Beimler' (LEW) konnte aufgrund der besonderen Insellage und eigenen Infrastruktur einige ihrer Neuerungen und Fahrzeuge sozusagen vor der eigenen Haustür erproben. Nennenswert im Zusammenhang mit der Berliner S-Bahn sind die:
Die Erprobungsfahrzeuge im einzelnen (Tabelle nach [3] und [4], ohne Anspruch auf Vollständigkeit):
| Viertelzug | Erprobung | von | bis | Bemerkungen |
| ET 165 518, Vz 165 111, 324, 492 | luftgefederte Drehgestelle | ab Frühjahr 1962 | 1965 | ET 165 518 Erprobung auch im Fahrgastverkehr, alle anderen nur Leererprobung. Nach einer Entgleisung vor Bln-Ostbahnhof wurden die Erprobungsfahrten abgebrochen und der ET 165 518 sowie die Vz 165 324 und 492 zu EMB-Viertelzügen mit Regeldrehgestellen umgebaut. |
| ET 165 111 | luftgefederte Drehgestelle | 1965 | 1972 | Einsatz als Paßviertelzug. Entwicklung abgebrochen. |
| ET 165 121 | elektronische Anfahrsteuerung | 1969 | 1971 | Erprobung nachts, im ET Inneneinrichtung entfernt, nur ein Drehgestell angetrieben. |
| 275 657 + 731 | elektronische Anfahrsteuerung | 1974 | 1976 | beide ET kurzgekuppelt, alle vier Drehgestelle angetrieben, ET 275 657 mit Dachstromabnehmer. |
| 270 001/2 | erste Probefahrten | Feb 1980 | Mai 1980 | 270 003/4 ab April 1980; 270 005/6 + 007/8 folgten bis Juli. |
Für die beschleunigte Erprobung der elektronischen Anfahrsteuerung sowie für die ersten Fahrten der BR 270 richtete die Reichsbahn zeitweise auf der Inselstrecke einen Schienenersatzverkehr ein.

Der zweite Versuchszug zur Erprobung der elektronischen Anfahrsteuerung bestand aus den beiden kurzgekuppelten Triebwagen 275 657 und 731. Während der ET 275 731 mit einem Dachstromabnehmer ausgerüstet wurde, hatte der vordere Triebwagen 275 657 auf seinem Dach Widerstände installiert bekommen, die es den Ingenieuren ermöglichten, die neue Steuerungsart auch im Stand zu testen. Übrigens: Beide Triebwagen wurden im Jahre 1987 für die (Ost-)Berliner Verkehrsbetriebe in U-Bahnwagen vom Typ EIII/5 umgebaut (1983).
Im Rahmen der Elektrifizierung der Berliner Fernbahnstrecken entschied sich die DR, zum Winterfahrplan 1983 den S-Bahnverkehr einzustellen. Der letzte S-Bahnzug verließ am Mittwoch, dem 21. September 1983 um 1.25 Uhr den Bahnhof Hennigsdorf, acht Minuten später traf er pünktlich in Velten ein. Für einen Übergangszeitraum von nur zwei Wochen verkehrten jetzt zwischen Hennigsdorf und Velten (—Kremmen) dieselbespannte Personenzüge, bevor ab dem 6. Oktober 1983 elektrische Züge, nun mit 15 kV, den Personenverkehr übernahmen.
Die Triebwagenhalle wurde in diesen letzten Septembertagen von der S-Bahntechnik geräumt. Schon am 1. Oktober 1983 ordnete die DR sie nun neu als Außenstelle dem Bahnbetriebswerk Wustermark zu. Dieses nutzte die Anlage zum Abstellen einiger ihrer Lokomotiven. Ruckzuck wurde in den nachfolgenden Wochen die Stromschiene entfernt - zu voreilig, wie sich alsbald herausstellte. Denn mit der im Jahre 1987 anlaufenden Serienproduktion der BR 270 hätte das LEW Hennigsdorf die alte S-Bahnstrecke Hennigsdorf - Velten für die ersten Probefahrten der neuen Züge gut gebrauchen können. Also entschloß man sich, Anfang 1987 dieses Streckengleis bis zur Triebwagenhalle erneut mit einer Stromschiene auszurüsten und das Unterwerk Hennigsdorf wieder in Betrieb zu nehmen. Ende 1987 wurde auch die Oberleitung bis an die Fahrzeughalle herangeführt. Da der technische Aufwand zum Betreiben der beiden benötigten Stromsysteme jedoch sehr groß war, entschloß man sich zwei Jahre später, ein separates Streckengleis - was ebenfalls mit einer Stromschiene und einer Oberleitung ausgerüstet wurde - aufzubauen und in Betrieb zu nehmen. Dieses Gleis reichte aber nicht mehr bis zur Triebwagenhalle heran.

Bis Ende des Jahres 1987 rüstete das LEW Hennigsdorf die Zufahrt zum Hallengleis 15 mit einer Oberleitung aus (um 1988).
Die nächste Veränderung kam nach der Wende: das Bw Wustermark wurde zum 1. September 1996 aufgelöst. Die Triebwagenhalle Velten, die in den 1990er Jahren als Reparaturwerkstatt für Gleisbaufahrzeuge diente, blieb noch bis zum Februar 1997 in Betrieb. Kurz darauf vermietete die Deutsche Bahn AG als Besitzer die Bahnanlagen an Adtranz, die 1996 die Hennigsdorfer AEG Schienenfahrzeuge GmbH (hervorgegangen aus dem LEW Hennigsdorf) erworben hatte. Seit Januar 2002 nutzt die Firma Stadler Pankow GmbH die ehemalige S-Bahnanlage für ihre Zwecke. Seit 2001 steht die Triebwagenhalle mit Wasserturm und dem Stellwerk unter Denkmalschutz. Zuvor versuchte noch der damalige Eigentümer, die Deutsche Bahn AG, die Aufnahme in die brandenburgische Landesdenkmalliste zu verhindern [5].
zur Bildergalerie der Triebwagenhalle Velten
Autor:
Mike Straschewski
Danksagung:
Der Autor bedankt sich bei Herrn Hans-Joachim Hütter für seine Aufzeichnungen und Erklärungen über die Probeverkehre.
Quellen und weiterführende Buchtipps:
[1] Ein ausgefallener Wanderbericht - Auf den Trassen der Osthavelländischen Kreisbahnen; Roland Ebert; Dr. Hans-Joachim Pohl; Verkehrsgeschichtliche Blätter Heft 5/1989
[2] Die Kremmener Bahn; Peter Bley; Verlag Neddermeyer 2004; S. 82
[3] Die S-Bahn-Strecke Velten - Hennigsdorf; Roland Ebert; Hans-Joachim Hütter, Verkehrsgeschichtliche Blätter Heft 6/1983; S. 126 ff.
[4] Aufzeichnungen Hans-Joachim Hütter
[5] Berliner Bahnbetriebswerke; Michael Reimer/Dirk Winkler,Verlag GeraMond, 2001, S. 177
[6] Im Denkmal wird gearbeitet; Märkische Allgemeine vom 6. September 2002
Hochbauten der elektrisierten Stadt- und Vorortbahnen Reichsbahndirektion Berlin; Richard Brademann; Zeitschrift für Bauwesen, Heft 2 vom Februar 1930
Dienstplan 108 für 50 Triebwagenführer, Ausgabe vom 23. Mai 1971
weiterführende Links:
Die Triebwagenhalle bei Google Earth
Die Triebwagenhalle Velten
letzte Änderung:
30. Januar 2011
Veröffentlichung:
30. Juni 2010